
VIVIENDA M.M - Santina Norte
Proyecto, Dirección y Representación Técnica Estado actual: Inicio de Obra
Tiempo de obra aproximado: 10 meses Realización en 2 etapas
Ciudad: Córdoba capital
superficie total proyectada: 400 m2
La obra tiene fecha de inicio aproximada para finales del 2016.-
Proyecto: Arq. Gabriela Borda Bossana
D.T y R.T. : Arq.Borda Bossana - Arq. Carballido
Cálculo estructural: Estudio Encor
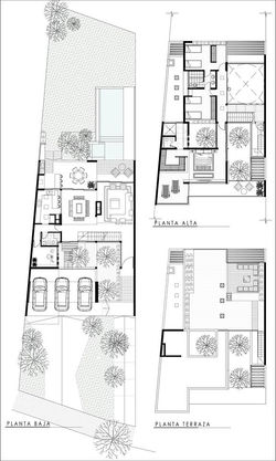
Vivienda unifamiliar ubicada en el Barrio cerrado Santina Norte de la ciudad de Córdoba. La unidad contará con: - Garage para 3 vehículos - Sala de estar de doble altura - Comedor amplio para mesa de 8 a 10 personas -Hogar intermedio protagónico que divide los espacios - Patios internos que funcionaran como espacios de fuelle entre el exterior e interior ademas de núcleo de acondicionamiento natural. - Cocina espaciosa subdividida del comedor con puertas corredizas para adaptar los espacios según las necesidades. - Una habitación flexible para escritorio o sala de planchado y lavado. - Habitación en suite con vestidor amplio, una sala para aparatos de GYM, baño en suite con ducha y sanitario divididos y balcón con vistas a reserva - Dos habitaciones secundarias con ante baño y baño integrado. - Galería semi cubierta con asador y mesada - Terraza accesible con pergolado deck de madera y áreas verdes - Piscina con borde infinito, solar húmedo e hidro masaje integrado - Patio trasero y delantero - Sala de maquinas
![]() | ![]() | ![]() |
|---|---|---|
![]() | ![]() | ![]() |
![]() | ![]() | ![]() |
![]() | ![]() | ![]() |
![]() | ![]() | ![]() |
![]() | ![]() | ![]() |
![]() | ![]() | ![]() |
![]() | ![]() | ![]() |
![]() | ![]() | ![]() |
![]() | ![]() | ![]() |
![]() | ![]() | ![]() |
![]() | ![]() | ![]() |
![]() | ![]() | ![]() |
![]() | ![]() | ![]() |
![]() | ![]() | ![]() |













































